LOCAL D'ACTIVITÉ / PRODUCTION / PONT ROULANT 10T A LOUER
CHASSIEU - 1150 m2 divisibles à partir de 1150 m2
74,39 € HC et HT/m2/an
LOCAL D'ACTIVITÉ / PRODUCTION
À LOUER : Opportunité exceptionnelle à Chassieu, Lyon Est
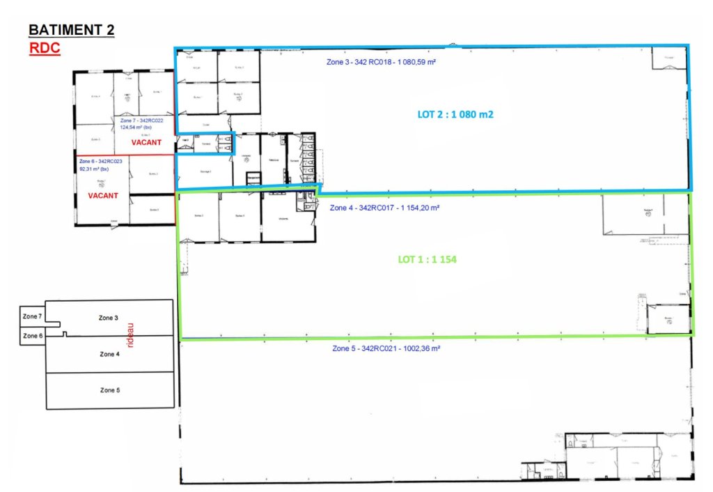
Découvrez un local d'activité idéalement situé au cœur d'un parc dynamique à Chassieu. Offrant une surface totale de 1 154 m², ce bien peut être modulé et réuni pour répondre parfaitement à vos exigences professionnelles.
Ces espaces, entièrement rénovés, bénéficient de travaux de modernisation de grande envergure, incluant :
- Le désamiantage et la pose d'une toiture neuve pour une sécurité optimale.
- La rénovation intégrale des bureaux et vestiaires pour un confort accru.
- L'installation d'un système de chauffage performant à aérothermes gaz dans les entrepôts.
- Un éclairage modernisé avec un relamping LED pour une meilleure efficacité énergétique.
- Le remplacement des trois rideaux métalliques, garantissant sécurité et praticité.
Chaque lot est équipé d'un pont roulant de 10 tonnes, idéal pour les activités nécessitant la manutention de charges lourdes. Une opportunité rare à ne pas manquer pour développer vos activités dans un cadre moderne et fonctionnel !
Réf : 7087
Nous aimons
- Emplacement du site : Pont roulant, capacité de 10 tonnes.
Caractéristiques
Aménagements
- surface totale : 1150 m2
- surface divisible : à partir de 1150 m2
Informations financières
- loyer annuel HC et HT : 74,39 €/m2
- dépôt de garantie : 18,60 €/m2
- total honoraires HT : 11,16 €/m2
- type de bail : Commercial
- frais de rédaction du bail : 750 €
Imprimer la ficheVoir nos prestations et tarifs
Classe énergie et classe climat
DPE VIERGE
L'agence
NCBC L'IMMOBILIER D'ENTREPRISE
NCBC Lyon
1, rue Claude Chappe
69370 ST DIDIER AU MONT D OR
Tél : 04 37 24 14 00
Contactez-nous via ce formulaire ou appelez-nous pour visiter ce bien
Transports et commerces sur CHASSIEU (69680)
Chassieu est une ville de 11 092 habitants.
L'IMMOBILIER D'ENTREPRISE







