PLATEAU NEUF AMENAGE A VENDRE
CHASSIEU ZIMI-PLAINE - 350 m2
1 000 000 €
PLATEAU NEUF AMÉNAGÉ - 350 m² - ZIMI-PLAINE, CHASSIEU
Situé dans un immeuble récent (livré en 2023) et accessible par ascenseur, au deuxième étage, ce plateau de bureaux neuf de 350 m² offre un agencement contemporain et fonctionnel, prêt à accueillir une activité professionnelle sans travaux. Libre immédiatement, il bénéficie d'une distribution fluide et de deux WC séparés, ainsi que d'un coin cuisine pratique pour les pauses et la restauration du personnel.
La luminosité est privilégiée grâce à de larges façades vitrées visibles sur les photos ; les espaces sont pensés pour favoriser le confort de travail et la modularité des aménagements (open-space, bureaux cloisonnés ou espaces de réunion). Les équipements techniques répondent aux standards actuels : chauffage individuel par pompe à chaleur, climatisation, connexion Fibre, alarme, interphone, digicode et système d'accès sécurisé. L'ensemble confère un confort thermique et une qualité de service efficaces pour des usages professionnels exigeants.
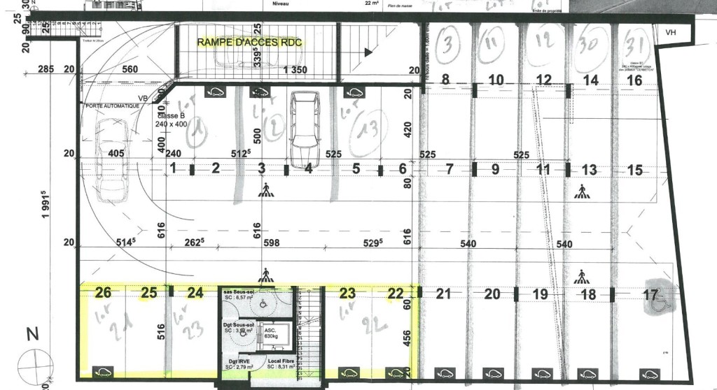
Le plateau s'accompagne d'un parc de stationnement conséquent : 5 places en sous sol et 6 places extérieures, facilitant l'accueil des collaborateurs et des visiteurs.
Pour découvrir ce plateau et évaluer son potentiel selon vos besoins (implantation d'équipes, optimisation des espaces, accueil clients), contactez-nous afin d'organiser une visite sur site. Visite et dossier sur demande.
Réf : 7390
Nous aimons
- Qualité de construction du bâtiment
- Emplacement au sein de la ZI mi-plaine
- Agencement du plateau de bureaux
Caractéristiques
Aménagements
- construit en : 2023
- cuisine : coin cuisine
- chauffage : individuel pompe a chaleur
- climatisation : oui
Copropriété
- soumis au statut de la copropriété : oui
- copropriété : 15 lots
- procédure en cours : non
Informations financières
- prix de vente : 1 000 000 €
- prix de vente : 2 857,14 € /m2
- honoraires à charge : De l'acquéreur
- charges annuelles : 18 605 €
- charges annuelles : 53,16 €/m2
- les charges incluent : Honoraire NCBC : 5% HT du prix de vente en sus
- total honoraires HT : 50 000 €
Voir le planVoir le planImprimer la ficheVoir nos prestations et tarifs
Classe énergie et classe climat
DPE VIERGE
L'agence
NCBC L'IMMOBILIER D'ENTREPRISE
NCBC Lyon
1, rue Claude Chappe
69370 ST DIDIER AU MONT D OR
Tél : 04 37 24 14 00




















