LOCAL COMMERCIAL NEUF A VENDRE
MACON - 776 m2
2 159 000 €
A VENDRE - LOCAL COMMERCIAL
A vendre sur la commune de MACON, proche du centre historique, local commercial en VEFA de 776m² environ divisibles, avec un linéaire sur rue d'environ 70m dont 55m linéaire de vitrines, situé en pied d'immeuble. Sol : dalle béton finition lissée, murs brique ou béton brut, plafond isolation coupe-feu et thermique, Possibilité de places privatives sur le parking aérien de la copropriété. Livraison 1er semestre 2025.
Réf : 6622
Caractéristiques
Informations financières
- Assujetti à la TVA : oui
- prix de vente : 2 159 000 €
- prix de vente : 2 782,22 € /m2
- honoraires à charge : De l'acquéreur
- total honoraires HT : 129 540 €
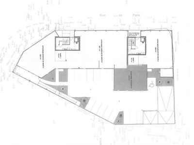
Quelques surfaces plus en détail
Surfaces données à titre indicatif – Non contractuelles :
- Local commercial (niveau 0) : 175.1 m2
- Local commercial (niveau 0) : 380.9 m2
- Local commercial (niveau 0) : 219.7 m2
Voir quelques surfaces plus en détailImprimer la ficheVoir nos prestations et tarifs
L'agence
NCBC L'IMMOBILIER D'ENTREPRISE
NCBC Chalon
Rue de la Grange Frangy
71100 CHALON SUR SAONE
Votre conseiller pour avoir plus d'informations
Nicolas GAUTHIER
Agent commercial
Tél mobile : 06.11.65.51.08
Contactez-nous via ce formulaire ou appelez-nous pour visiter ce bien
Transports et commerces sur MACON (71000)
Macon est une ville de 34 448 habitants. On y trouve des commerces dont des supermarchés ou supérettes.




















