LOCAL D'ACTIVITE A LOUER
AUTUN - 365 m2
49,32 € HC et HT/m2/an
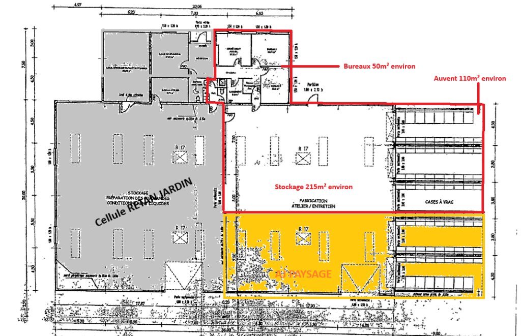
Cellule d'activité - Autun - 365m² environ
Situé dans la zone d'activités Bellevue à Autun, Cette cellule d'activité mixte bénéficie d'une bonne visibilité et se trouve à proximité de nombreuses entreprises locales, facilitant les synergies professionnelles et l'accès aux commodités. Composé d'environ 50 m² de bureaux, une surface activité/stockage propose environ 215 m² avec porte sectionnelle. Un auvent couvert de 110 m² complète l'ensemble, offrant une surface supplémentaire protégée idéale pour le stockage extérieur. Parkings clients et collaborateurs en façade. Très belle opportunité d'implantation.
Réf : 7507
Caractéristiques
Informations financières
- Assujetti à la TVA : oui
- loyer annuel HC et HT : 18 000 €
- loyer annuel HC et HT : 49,32 €/m2
- dépôt de garantie : 1 500 €
- total honoraires HT : 2 700 €
- type de bail : COMMERCIAL
Imprimer la ficheVoir nos prestations et tarifs
Classe énergie et classe climat
DPE VIERGE
L'agence
NCBC L'IMMOBILIER D'ENTREPRISE
NCBC Chalon
Rue de la Grange Frangy
71100 CHALON SUR SAONE
Tél : 03.85.94.72.17
Votre conseiller pour visiter ce bien
Charlie CLEAUX
Tél : 03.85.94.72.17
Tél mobile : 07.50.14.80.48
Contactez-nous via ce formulaire ou appelez-nous pour visiter ce bien
Transports et commerces sur AUTUN (71400)
Autun est une ville de 13 145 habitants. On y trouve des commerces dont des supermarchés ou supérettes.








